BOVENWONING LISKWARTIER



In een stad als Rotterdam is een eigen buitenruimte schaars, zeker als je een bovenwoning hebt. Men verlangt daarom vaak naar een eigen tuin, maar waarom eigenlijk? In de dichtbebouwde stadswijken zijn deze tuinen vaak donker en je hebt minder privacy omdat al je buren op je neerkijken. Als je in de stad een goede buitenruimte wilt, dan moet je bovenin zitten. Boven heb je meer licht, uitzicht en privacy.

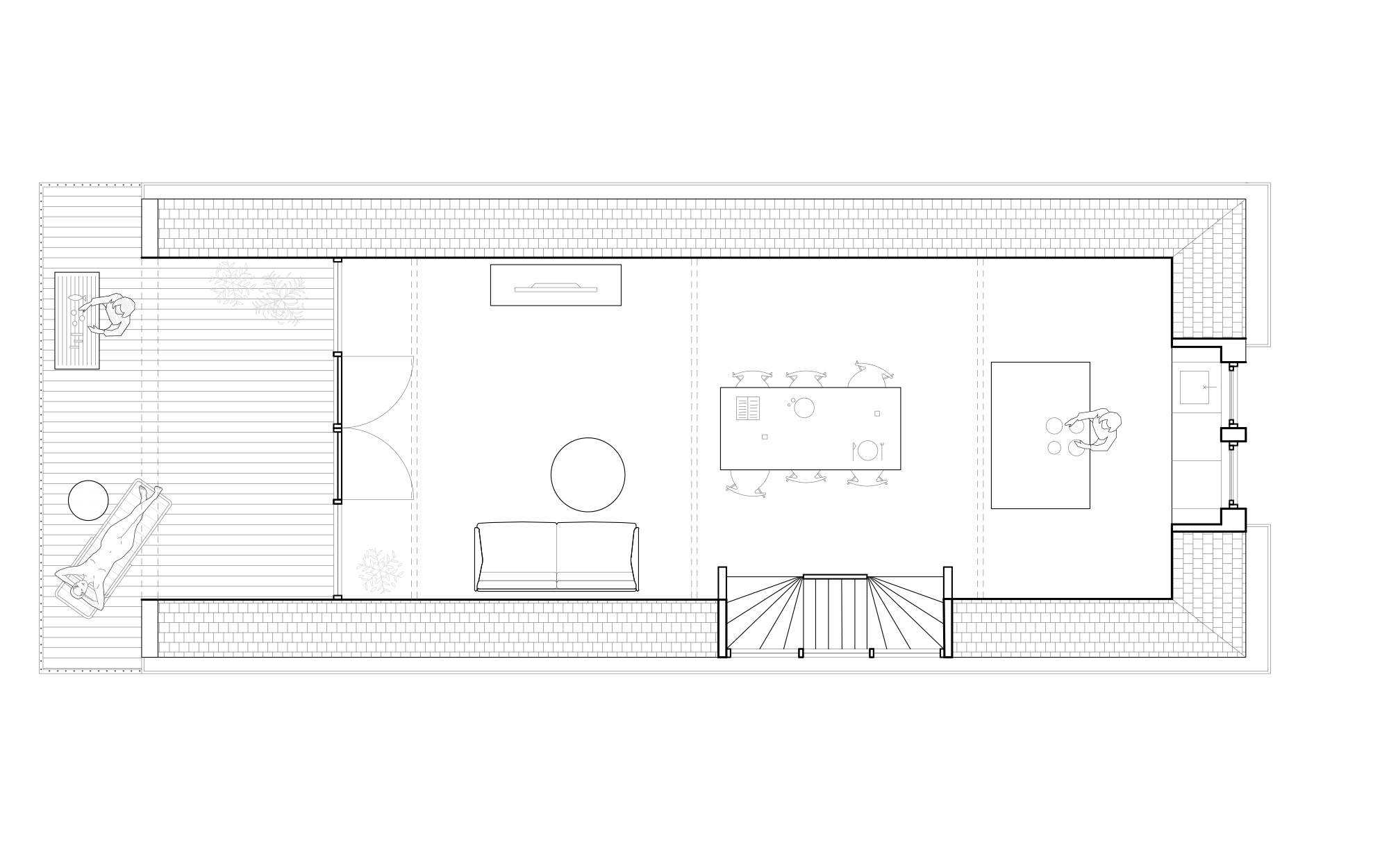
Voor de renovatie van een bovenwoning in de Rotterdamse wijk het Liskwartier stelde Studio Saal daarom voor om een buitenruimte in-te-bouwen. Een nieuw groot dakterras op de bovenste zolderverdieping die overloopt in de woonkamer. Wie heeft dan nog een tuin nodig?


3e verdieping bestaande situatie
3e verdieping nieuwe situatie

2e verdieping bestaande situatie
2e verdieping nieuwe situatie
locatie
rotterdam

opdrachtgever
citylife

status
gerealiseerd

jaar
2021

type
woning

partners
p&s ingenieurs
binnenmaasvastgoed