WONEN IN EEN KANTOOR


In het beschermde stadsgezicht Blijdorp te Rotterdam wordt een voormalige winkelruimte aan de Schieweg gebruikt als kantoor. Vanwege de toekomstige verhuizing van het bedrijf wordt de kantoorruimte getransformeerd naar een stadswoning. In de nieuwe situatie wordt de volledige diepte van de ruimte optimaal benut. Op de begane grond wordt een royaal gedimensioneerde woonkamer met woonkeuken gerealiseerd en in het souterrain komen er drie slaapkamers, met daartussen een luxe badkamer en inloopkast. Op beide verdiepingen komt er een nieuwe toegang naar buiten om de verbinding naar de tuin te verbeteren. De karakteristieke stalen puien met enkel glas worden vervangen met ranke aluminium kozijnen die het oorspronkelijke staal nabootsen. Vanwege de drukke Schieweg worden de kozijnen voorzien van geluidsisolerend glas.
nieuwe situatie begane grond: woning
oude situatie begane grond: winkel
huidige situatie begane grond: kantoor

oude situatie souterrain: winkel
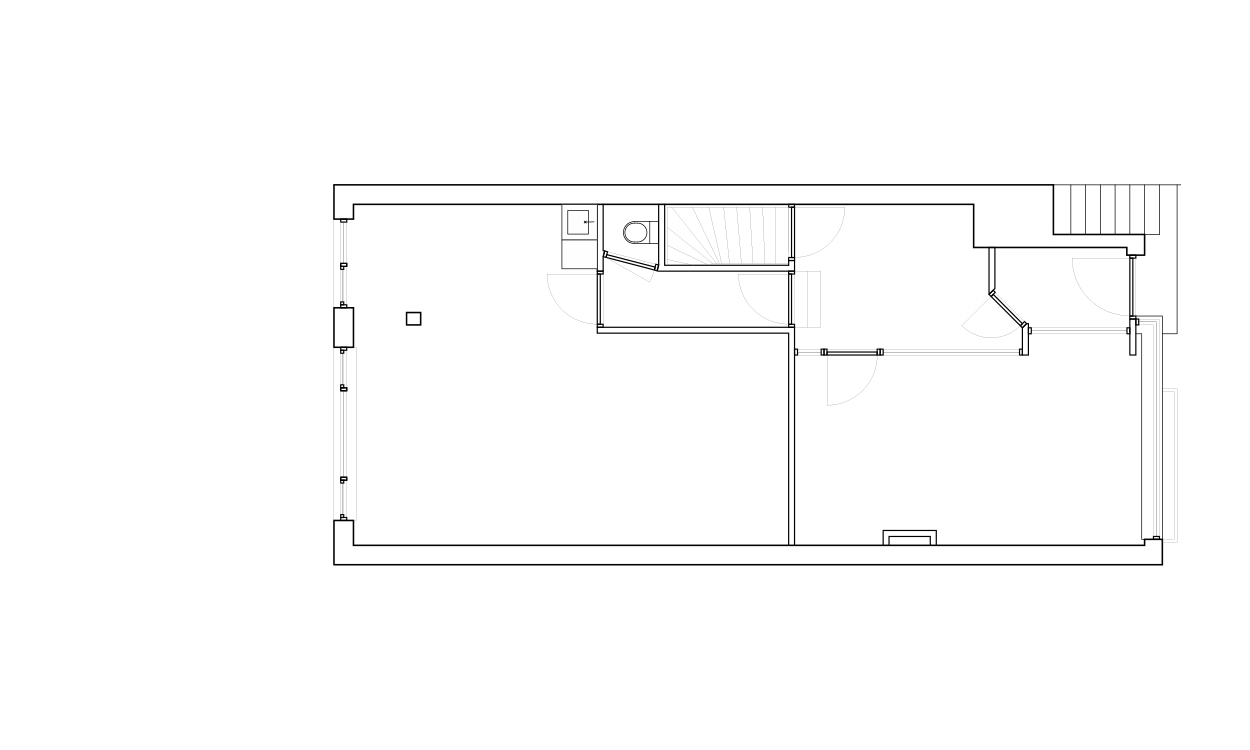
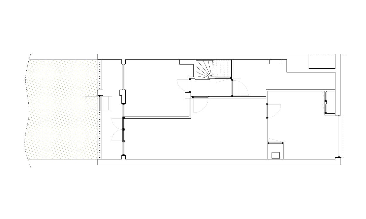
huidige situatie souterrain: kantoor
nieuwe situatie souterrain: woning

locatie
rotterdam

opdrachtgever
kolpa vastgoed beheer

status
in uitvoering

jaar
2022

type
transformatie
woning

partners
valersi geluidsonderzoek 
p&s ingenieurs
alcantara visualisaties